202号室「ルーブル」 入居中
光ハイツ202号室「ルーブル」は現在入居中です。
アートと生活する
玄関を入るとダマスク柄の壁にゴールドの額縁が掛かり、まるでギャラリーのように展示が出来る廊下。欄間部分をそのまま生かした天使のレリーフは、和と洋の融合。ルーブルピラミッドを模した照明に、エレガントなトイレスペース。
アートと生活する。好きな絵を見ながらのゆったりとした自分だけの時と空間。普通のお部屋では飽き足らないあなたを きっと満足させてくれるお部屋です。
物件資料
物件資料はPDF形式でご提供しております。
物件情報
| 現況 | 入居中 |
|---|---|
| 家賃 | *****円 |
| 敷金 | 2ヶ月 |
| その他 | 共益費:****円 区費:***円 |
| 所在地 | 長野市東鶴賀町30-6 |
| 交通 | JR「長野」徒歩22分 長野電鉄長野線「権堂」徒歩11分 長野電鉄バス「柳町団地」徒歩4分 |
| 構造 | RC造6階建て |
| 築年 | 昭和53年6月(1978年) |
| 契約期間 | 定期建物賃貸借契約(2年)[再契約型] |
| 入居日 | お問合せください |
| 駐車場 | 徒歩1分の所に月極駐車場 7,000円(税込)〜 |
| 設備 | モニター付きインターフォン・エアコン・温水洗浄便座・2重サッシ・都市ガス・3点給湯(追焚) |
| 備考 | 壁を塗装や棚付などでDIYカスタマイズ(リノっしょ)可 |
ご見学、入居お申し込みについてはご相談ください。
※家具、及び居室の照明は展示品のためお引渡し時までに撤去いたします。
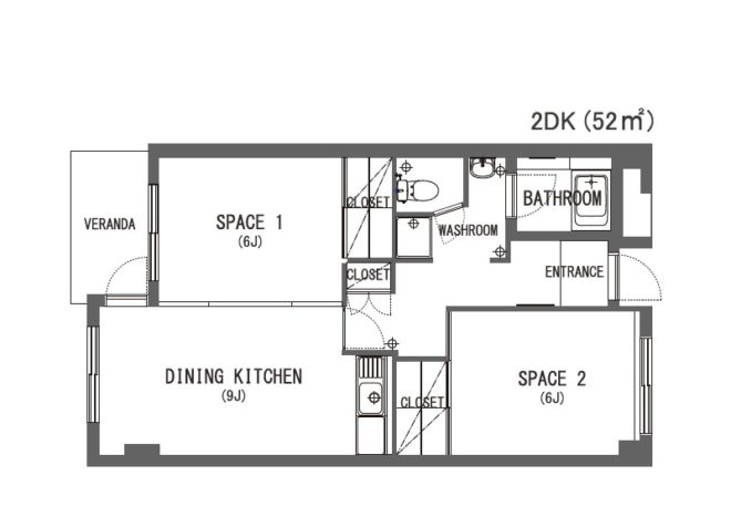
間取図
光ハイツって?

光ハイツは時が経つごとに味わい深まる「ビンテージビル」です。
6階建、20部屋中の半分がリノベーションで新たなお部屋へと生まれ変わっています。

光ハイツは看板屋アドイシグロが手がけるリノベーションプロジェクト。
ものづくりが大好きなクラフトマンたちによって、こだわりの空間が作り出されています。

光ハイツのコンセプトは「ものづくりビル」。
ものづくりを楽しみながら素敵に暮らしましょう!





周辺地図
長野市東鶴賀町30-6
長野市東鶴賀町30-6
光ハイツ・入居についてのお問い合わせ
お部屋見学、入居のご相談はお気軽にどうぞ。私たちがご案内します。
株式会社アドイシグロ(担当:神田)
〒380-0811 長野県長野市東鶴賀町30番地
Tel 026-233-2132 または 2105 / Fax 026-232-1066















